建筑工程防水5大标准化施工
所属分类:行业新闻 发布时间:2021-08-10 作者:dobons 点击:
1、防水卷材在基坑侧的铺装要求

防水卷材必须铺在基坑侧边,并在距坡顶和坡底800毫米宽的范围内
2。桩头防水实践
① 在桩顶、桩侧和桩周围刷一层渗透性结晶防水涂料
② 渗透结晶型防水涂料刷20厚聚合物防水砂浆
③ 从边缘到桩边缘,在聚合物防水砂浆上进行大面积表面防水施工④ 大面防水与桩体交接处及桩头锚筋根部密封膏[Picture


3.底板沉降后后浇带超前止水施工方法
① 沉降后的后浇带采用先进的止水结构
② 先浇筑高级止水结构混凝土,再浇筑底板混凝土
③ 在浇筑底板混凝土之前,首先浇筑的混凝土表面应粗糙
④ 超前止水伸缩缝下加500宽防水附加层[Picture


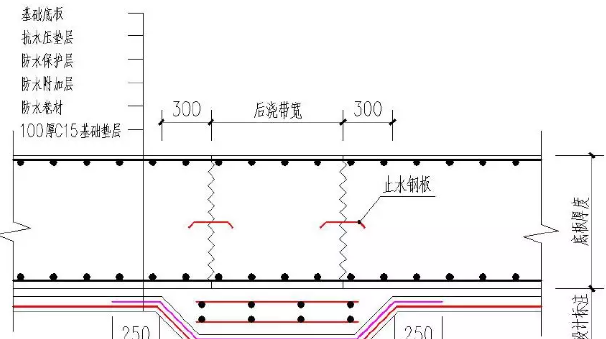
4.后浇带施工方法(带降水)
① 当地下水位高于基础底板时,在基础垫层施工时,应在后浇带设置抗水压垫层,施工方法如图/所示。② 抗水压垫层应单独浇筑,混凝土等级应与基础底板相同。③ 防水卷材的附加层应布置在防水垫层下,两侧超过250mm④ 这个位置的每一层的顺序是:基础→ 坐垫→ 防水层→ 防水附加层→ 抗水压垫层→ 底板;如果节点方法与设计不一致,以设计为准[Picture


5.后浇带施工方法(无沉淀)
① 当地下水位低于基础底板时,按照图/所示的方法设置后浇带
② 后浇带混凝土接缝处500宽防水附加层












